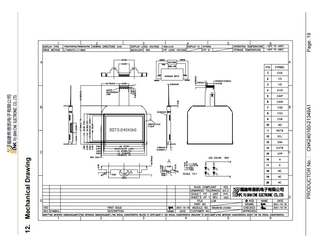
| ITEM | Especificação | 
| Tamanho do módulo | 55.58 (w) x47.18 (h) x5.4 (t) mm | 
| Exibir área de exibição (lente) | 48.59 (w) x33.39 (h) mm | 
| Exibir área de exibição (LCD) | 
				49.58 (w) x34.38 (h) mm | 
| Modo de exibição | 
				FSTN Transflexivo positivo | 
			
| Ver IC | 
				6 horas | 
			
| Driver IC | 
				ST75256 (ou compatível) | 
			
| Luz de fundo | 
				LED/vermelho | 
			
| Peso | TBD | 
			


 
